Listing Tools

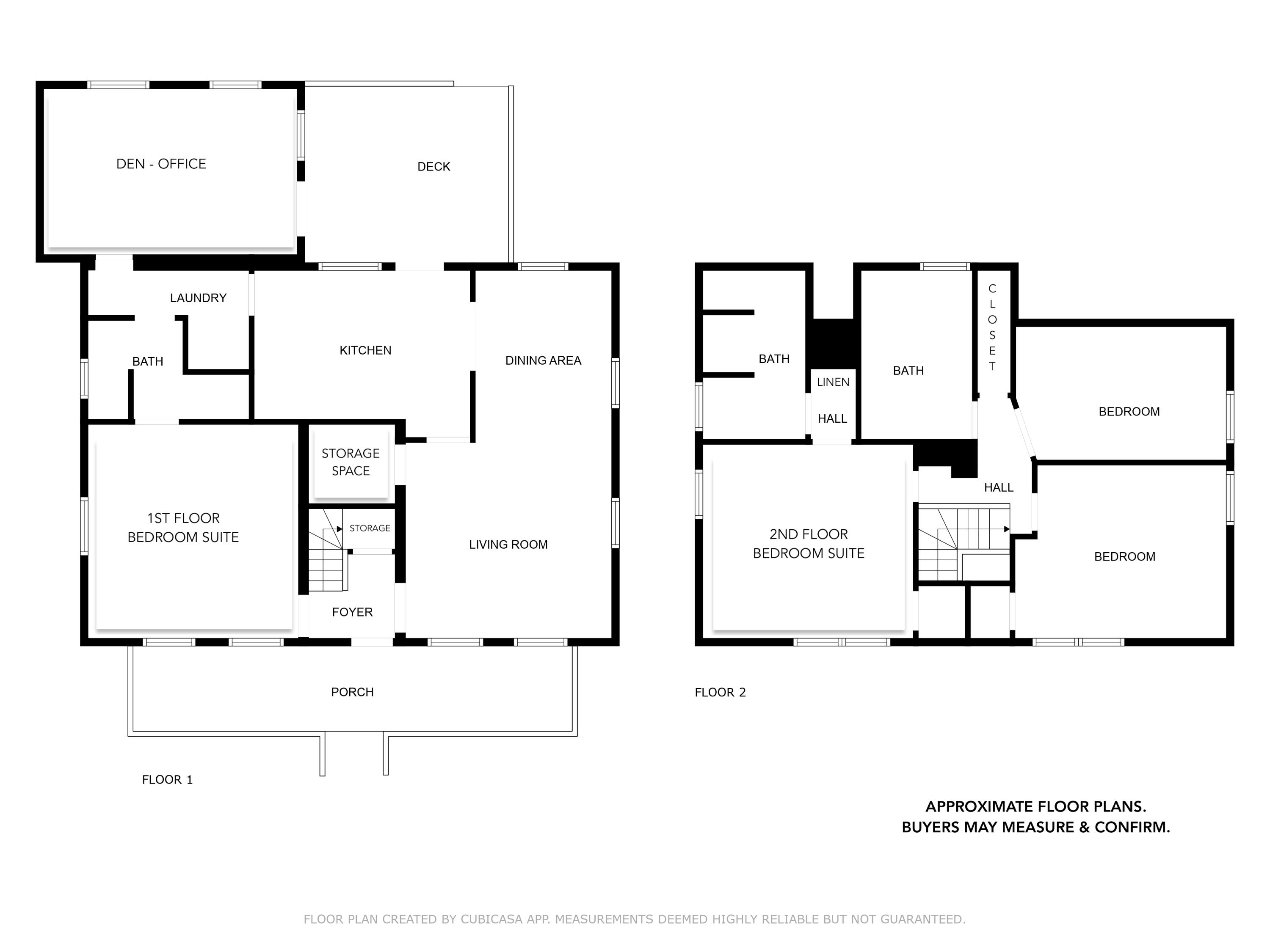
Charming cottage-like exterior with remarkably spacious interior including 4 bedrooms, 3 full baths and approximately 1965 sq. ft. of finished living space. Located in the heart of downtown Rockland, just a 3 minute drive & approximately 13 minute walk to Rockland Harbor Public Landing, downtown Rockland shops, galleries, and restaurants. Well-suited for one floor living, this home includes a large, first floor bedroom with ensuite bath, laundry & flex room for den, office or yoga. Plenty of room for guests in the three bedrooms on second floor including one with private bathroom. A separate, full bath is across from the remaining two bedrooms. This home and property are perfect for gatherings with open living/dining area, private back deck and large back yard that abuts a quiet, dead end street. Many work from home spaces, perhaps even on the cozy front porch in the afternoon sun. City of Rockland is in the process of re-paving Orange Street and surrounding streets. Showings are still available by appointment.

Property Details of 19 Orange Street

Property Details

Interior Features

Exterior Features

Utilities and Appliances

Map Location

Listing data is derived in whole or in part from the Maine IDX & is for consumers' personal, non commercial use only. Dimensions are approximate and not guaranteed. All data should be independently verified. ©2025 Maine Real Estate Information System, Inc. All Rights Reserved. equal opportunity housing logo   Privacy Policy

Reilly Real Estate participates in ©2025 Maine Listings Internet Data Exchange program, allowing us to display other Maine IDX Participants' listings. This website does not display complete listings. Certain listings of other real estate brokerage firms have been excluded. Mortgage figures are estimates. Check with your bank or proposed mortgage company for actual interest rates. This product uses the FRED® API but is not endorsed or certified by the Federal Reserve Bank of St. Louis.

Hi there! How can we help you?

Contact us using the form below or give us a call.

Send Us A Message:

I agree to receive marketing and customer service calls and text messages from Reilly Real Estate. To opt out, you can reply 'stop' at any time or click the unsubscribe link in the emails. Consent is not a condition of purchase. Msg/data rates may apply. Msg frequency varies. Privacy Policy.

Do not fill in this field:

This site is protected by reCAPTCHA and the Google Privacy Policy and Terms of Service apply.

Hi there! How can we help you?

Contact us using the form below or give us a call.

Send Us A Message:

Do not fill in this field:

This site is protected by reCAPTCHA and the Google Privacy Policy and Terms of Service apply.

Hi there! How can we help you?

Contact us using the form below or give us a call.

Send Us A Message:

Do not fill in this field:

This site is protected by reCAPTCHA and the Google Privacy Policy and Terms of Service apply.

Do not fill in this field:

This site is protected by reCAPTCHA and the Google Privacy Policy and Terms of Service apply.

Do not fill in this field:

This site is protected by reCAPTCHA and the Google Privacy Policy and Terms of Service apply.

Do not fill in this field:

This site is protected by reCAPTCHA and the Google Privacy Policy and Terms of Service apply.

$

Do not fill in this field:

This site is protected by reCAPTCHA and the Google Privacy Policy and Terms of Service apply.