Listing Tools

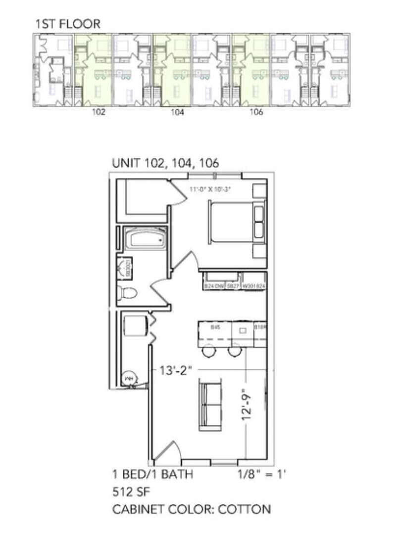
Be the first to live in this brand-new, zero-energy-ready 1BR condo at Dougherty Commons, ready for move-in December 2025. This first-floor home features a private entrance, high ceilings, and large windows for great natural light. Enjoy a modern kitchen with new stainless-steel appliances, a bright open layout, and in-unit washer/dryer hookups--perfect for low-maintenance, energy-efficient living. This home is ideal for buyers looking for a stylish, efficient space close to everything. Located right next to the Dougherty Fields complex (playground, outdoor pool, skate park, sports fields, basketball court), The #1, #4, #5, #7 & #9 Metro bus lines are adjacent, and the Portland Transportation Center with access to the Amtrak Downeaster train and Concord Coach buses is .5 mile. These services run south to Boston and New York, and north to Bangor via Midcoast or Central Maine. Metro's Breez bus also runs from the Transportation Center offering routes to Yarmouth, Freeport, and Brunswick. Prices & Household Size: Project is subsidized; Buyer must be at or under $90,900 gross income per year for one person, or $103,850 for two people (but it's ok to just have one person on the deed and mortgage and only count one person's income.) There are resale restrictions to ensure permanent affordability. Seller is willing to give concessions to Buyer at closing.

Property Details of 65 Dougherty Court, Unit 102

Property Details

Interior Features

Utilities and Appliances

Map Location

Listing data is derived in whole or in part from the Maine IDX & is for consumers' personal, non commercial use only. Dimensions are approximate and not guaranteed. All data should be independently verified. ©2026 Maine Real Estate Information System, Inc. All Rights Reserved. equal opportunity housing logo   Privacy Policy

Reilly Real Estate participates in ©2026 Maine Listings Internet Data Exchange program, allowing us to display other Maine IDX Participants' listings. This website does not display complete listings. Certain listings of other real estate brokerage firms have been excluded. Mortgage figures are estimates. Check with your bank or proposed mortgage company for actual interest rates. This product uses the FRED® API but is not endorsed or certified by the Federal Reserve Bank of St. Louis.

Hi there! How can we help you?

Contact us using the form below or give us a call.

Send Us A Message:

I agree to receive marketing and customer service calls and text messages from Reilly Real Estate. To opt out, you can reply 'stop' at any time or click the unsubscribe link in the emails. Consent is not a condition of purchase. Msg/data rates may apply. Msg frequency varies. Privacy Policy.

Do not fill in this field:

This site is protected by reCAPTCHA and the Google Privacy Policy and Terms of Service apply.

Hi there! How can we help you?

Contact us using the form below or give us a call.

Send Us A Message:

Do not fill in this field:

This site is protected by reCAPTCHA and the Google Privacy Policy and Terms of Service apply.

Hi there! How can we help you?

Contact us using the form below or give us a call.

Send Us A Message:

Do not fill in this field:

This site is protected by reCAPTCHA and the Google Privacy Policy and Terms of Service apply.

Do not fill in this field:

This site is protected by reCAPTCHA and the Google Privacy Policy and Terms of Service apply.

Do not fill in this field:

This site is protected by reCAPTCHA and the Google Privacy Policy and Terms of Service apply.

Do not fill in this field:

This site is protected by reCAPTCHA and the Google Privacy Policy and Terms of Service apply.

$

Do not fill in this field:

This site is protected by reCAPTCHA and the Google Privacy Policy and Terms of Service apply.